Our Mission
We’re creating sustainable, attainable, human-scaled places in west Raleigh and Cary.
We’re excited to constructively contribute missing middle housing to the transformation of the Western Bus Rapid Transit corridor into a more transit-friendly, pedestrian-friendly area.
According to the US EPA, building near transit lines “can help lower household transportation costs, boost public transit ridership, reduce greenhouse gas emissions and air pollution, spur economic development, and make housing more affordable”.
Redgrove Place
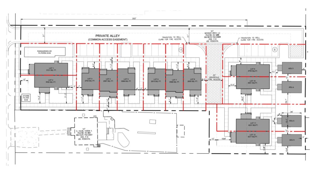
Redgrove Place is our proposal to build a pocket neighborhood of rowhouses and mews houses, accessed by a green courtyard and an alley at 711 Grove Avenue.
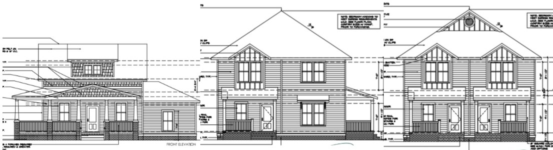
Redgrove Place will echo the existing visual character of Sunset Terrace with small new houses of 1,160 sq. ft. — similar in size to the 1,335 sq. ft. average of our neighbors, unlike the much larger new houses built recently (some over twice as large). We anticipate that all units will be available to moderate- and middle-income prices.
Our site design centers on a landscaped common green for residents’ enjoyment – including two rain gardens that will improve local drainage and reduce pollution to nearby streams. (Few of the new houses recently built in the area have included these features.) A T-shaped alley will ensure adequate emergency access to homes.
Much of Sunset Terrace Extension was originally built with houses behind other houses. Redgrove Place improves on this long-established pattern by adding a common green. The two neighboring townhouse courts (Grove Estates and Ashworth Townes), the front/rear houses on Powell, and the apartments at 720/721 Grove are all examples of how Sunset Terrace has many homes set behind others.
Download our approved site plan filing (PDF)
Engineering and landscape architecture: The Site Group and Wake Land Design (designer of Cottages at Filmore)
Architect: Tightlines Designs / Maurer Architecture

What’s next
Williams Row will bring 11 modern, energy-smart, family-sized rowhouses to a corner location in downtown Cary.
Westvale will combine affordable rental apartments with a stream valley park, at the key intersection of Hillsborough St and the Western BRT corridor.
Contact
hello@westover.green
Phone number (202) 935-3647

